iroda

Szekszárd, Palánki út A ép. fszt. 34.

Adatok

Kapcsolattartó

Leírás

A város északi határában lévő, kiváló közlekedéssel rendelkező telephelyen, utcafronti kétszintes irodaépületben irodák kiadók.

Igény esetén A épületünkben 119 m2 irodaterületet (irodák) tudunk rendelkezésre bocsátani, de ezek mellett raktárakat, műhelyeket és szabad területet is kínálunk.

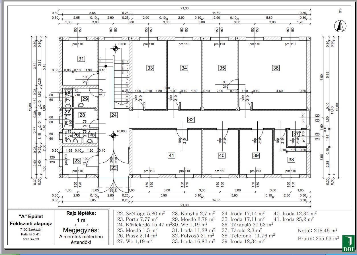
A épület, földszintén található 34. iroda helyiségünket önmagába is kínáljuk kiadásra, mely 17,14 nm. Konyha és mósdóhasználat biztosított.

A telephelyen 24 órás biztonsági portaszolgálat működik, mely a rezsidíjakkal együtt benne értendő a bérleti díjban.

Kérjük, időpont egyeztetésért, további információért keresse kapcsolattartónkat.