iroda

Szekszárd, Palánki út 41. (A épület, 33,96 m2)

Adatok

Kapcsolattartó

Leírás

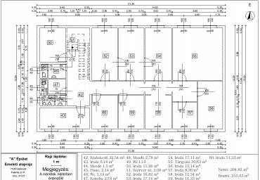
Kiadó irodák Szekszárdon! Palánki u. telephelyünk A épület emeletének 52-53-as összesen 33,96 m2 helyiségét kínáljuk kiadásra. Az irodák külön bejáratúak és légkondicionálóval vannak ellátva. Igény esetén további irodákat is tudunk biztosítani.
Továbbá műhelyek, raktárak és szabad területek is bérelhetők.

Bérleti díj: 1600 Ft/m2/hó+Áfa

Üzemeltetési díj: 200 Ft/m2/hó+Áfa (rezsivel)