iroda

Székesfehérvár, Hosszúsétatér 1. kiadó iroda

Adatok

Kapcsolattartó

Leírás

Székesfehévár belvárosában, mégis csendes környezetben kiadó irodák.

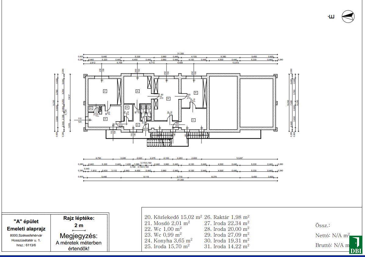
A Hosszúsétatér 1. szám alatti irodaépület emeletén iroda helyiségek kiadók.

A betonúton megközelíthető és körülkerített telephelyünkön szabad terület is bérelhető.

Bérleti díj: 1 800 Ft/m2/hó+ÁFA
Üzemeltetési díj: 210 Ft/m2/hó+Áfa

További információért kérjük keresse munkatársunkat.