iroda
Kiadó iroda Kaposváron a Raktár utcában
Adatok
- Cím: Kaposvár, Raktár utca 13
- Értékesítés típusa: Kiadó
- Ingatlan típusa: iroda
- Méret: 491 m2
- Közművek: Víz, Csatorna, Gáz, Áram
- Ár: 2 600 Ft/m2/hó
Kapcsolattartó
- Neve: Koroknay Martin
- Email címe: mkoroknay@dbi.hu
- Telefonszáma: +36304450148
Leírás
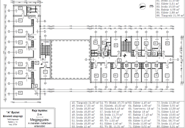
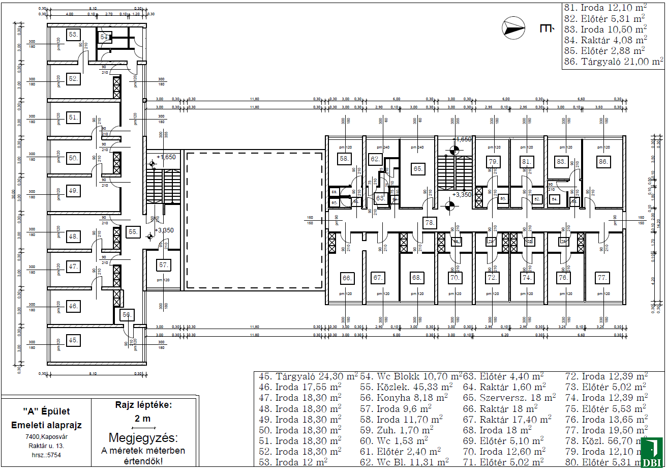
Kiadásra kínálunk Kaposvár frekventált részén a Raktár utcában egy 491,4 négyzetméteres (Az alaprajzon 45-78-ig jelölt helyiségek) 1. emeleti irodát.
A B kategóriás irodaház jó állapotú, folyamatosan karbantartott, bérlői csendesek, kulturáltak.
Az irodarész 17 külön és egybe nyíló részből áll, amelyek egy folyosóról közelíthetőek meg. Az emeleten 1 konyha, 2 wc blokk található, ahol férfi és női mosdók egyaránt kialakításra kerültek.
Műszaki leírás:
Az irodarészek laminált parkettával, a vizes helyiségek és a konyha járólappal burkoltak.
Nyílászárók: műanyag
Fűtés: gáz
Az ingatlan jelenlegi energetikai besorolása: EE
Az udvarban parkoló gépjárművek biztonságáról 24 órás őr-, és portaszolgálat gondoskodik.
Az iroda bérleti díja 2.600 Ft/m2/hó+ Áfa, üzemeltetési díja 1018 Ft/m2/hó+ Áfa
A rezsiköltség külön mérőóra alapján fizetendő.


