iroda
Kaposvár, Raktár u. 13. kiadó iroda
Adatok
- Cím: Kaposvár, Raktár u. 13. kiadó iroda
- Értékesítés típusa: Kiadó
- Ingatlan típusa: iroda
- Méret: 12 m2-től 21 m2-ig
- Közművek: Víz, Csatorna, Gáz, Áram
- Ár: 2 600 Ft/m2/hó
Kapcsolattartó
- Neve: Koroknay Martin
- Email címe: mkoroknay@dbi.hu
- Telefonszáma: 06-30-445-0148
Leírás
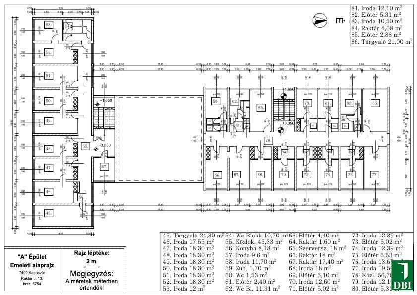
67. számú főútról megközelíthető, Kaposvár, Raktár utca 13. szám alatt található, csendes, rendezett telephelyen, utcafronti irodaépületben irodahelyiség kiadó.
Az irodaház emeletén a 66.,67.,70.,72.,74.,76.,77.,79.,81. sz. irodák bérelhetők.
Bérelhető irodák területe: 12,1-21 nm
Valamennyi közmű biztosított (víz, csatorna, áram, gáz, klíma).
24 órás őr-, és portaszolgálat, valamint kamerarendszer biztosítja az ingatlant.
Parkolás telephelyen belül.
Az ingatlan jelenlegi energetikai besorolása: EE
Bérleti díj: 2600 Ft/m2/hó+ÁFA A bérleti díj már tartalmazza a rezsi költségeket is.
Üzemeltetési díj: 1018 Ft/m2/hó+ÁFA
Ugyanitt további raktár helyiségek és szabad terület is kiadó.
További információért kérjük keresse munkatársunkat.










