lakás

Fonyód, Béke u. 11. kiadó munkássszálló

Adatok

Kapcsolattartó

Leírás

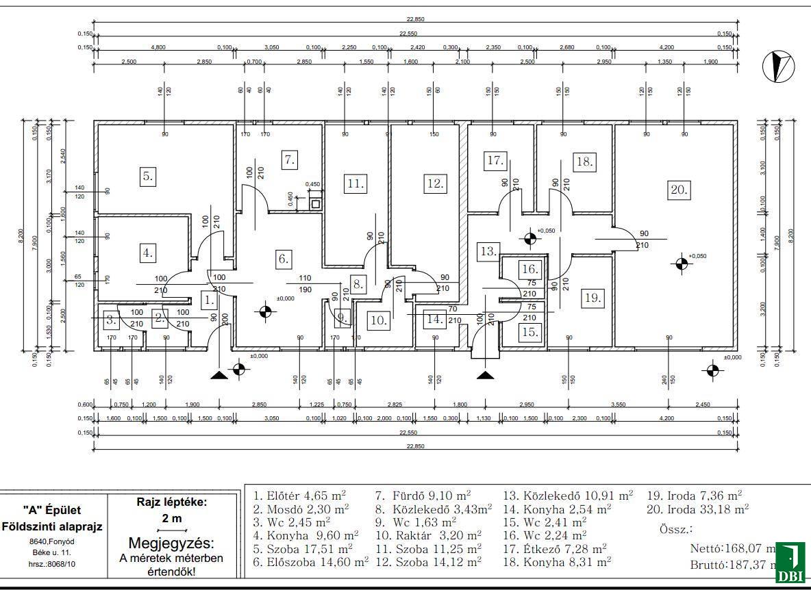
Fonyód, Béke utcában kiadó 93,84 m2-es munkásszállónak alkalmas ingatlan.
Autóval a 7-es számú fő útról gyorsan, könnyedén megközelíthető. Gyalogosan érkezőnknek csupán pár percnyi sétát kell megtenniük a vonatállomástól.
Az ingatlan 4 411 m2 alapterületű telephelyen fekszik.
Bérleti díj: megegyezés szerint
Ugyanitt további iroda, raktár, szabadterület kiadó.
Kérem, kérdésével, időpont egyeztetésért keresse kapcsolattartónkat a mellékelt elérhetőségek valamelyikén.