iroda
Fonyód, Béke u. 11. kiadó iroda
Adatok
- Cím: Fonyód, Béke u. 11. kiadó iroda
- Értékesítés típusa: Kiadó
- Ingatlan típusa: iroda
- Méret: 63 m2
- Közművek: Víz, Csatorna, Gáz, Áram
- Ár: 1 500 Ft/m2/hó
Kapcsolattartó
- Neve: Koroknay Martin
- Email címe: mkoroknay@dbi.hu
- Telefonszáma: 06-30-445-0148
Leírás
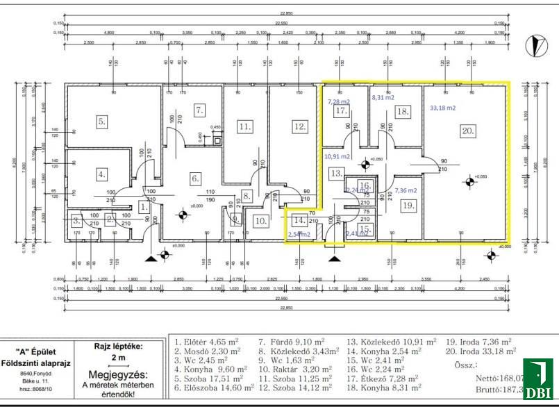
Fonyód frekventált részén, közel a 7-es úthoz, csendes környéken, a Béke utca 11. szám alatti ingatlanon található „A" épület jobb oldali szárnyában, kiadásra kínálunk egy irodablokkot, mely összesen 63,32 m2 és jelenleg két irodának kialakított helyiségből (33,18 m2+7,36 m2) áll, de a 18. sz. „étkezőből" (8,31 m2) is kialakítható még egy iroda. A 17. sz. helyiség konyha és étkező (7,28 m2) funkciót is betölt, a 14. sz. helyiség (2,54 m2) pedig akár irattárként is alkalmazható.
A víz, villany és fűtés (cirkó) elszámolása mérőóra állások alapján történik a mindenkori piaci egységárakon.
A telephelyen belül parkolót, szabadterületet is lehet bérelni, továbbá igény esetén munkásszállót is tudunk biztosítani az „A" épület bal oldali blokkjában.
Bérleti díj: 1500 Ft/m2/hó+Áfa+rezsi.
További információért kérjük keresse munkatársunkat.






















